Artefacts / Architecture, Installations

Mobilitearoom T.T-an

茶室・飛行亭「丁丁庵」

  This is a design for a mobile tea room for women intended to convey Japanese tea ceremony culture to the world.

Date
January 2026 -
Location
Paris, France(2026) and more
Size
2100 × 3060 × 2080 mm
Materials
Japanese oak, brass, tatami, unbleached washi paper, stainless steel, aluminium
Directors
Arata Suzuki, Asuka Hoshi
Client
Taiga Takahashi
Cooperations
Yasu Yamamoto, Rin Nagamoto, Riku Matsuzawa
Craftsmen
Takahashi Tategu Joinery Manufacturing Co.(wooden parts), Asuka Hoshi (metal parts), Ozawa Kanamonoten (brass nail), Takako Hasegawa (crate)
Manufacturer
Jonan Kogyo Co., Ltd. (stainless steel parts)

  This tea room was designed as an exhibition pavilion for a Japanese menswear brand to unveil its first women's collection during Paris Fashion Week in January 2026. We established two core principles for the project: that it should be a tea room created by men for women, and that its design should be suitable for transport to convey Japanese tea ceremony culture to the world.

  The design of a tea room incorporates the concept of UTSUSHI (translation). This refers to the practice of citing the design and aesthetic sensibilities of an exemplary tea room, known as HONKA (original model), in order to pass on its excellence to future generations.
  When examining historical and cultural tea rooms to select this original model, one is struck anew by how many are profoundly enclosed spaces. There are two primary reasons for this. Firstly, to clearly sever ties with the outside world, thereby encapsulating the tea master's idealised microcosm. Secondly, because status was equal within the tea room, and it served as a venue for political negotiations among samurai and officials. For instance, in the National Treasure tea rooms known as the Three Famous Tearooms, the core of their beauty lies not in incorporating external views, but in the masterful combination of planar materials such as tatami mats, earthen walls, and woven bamboo ceilings.
  Against this backdrop, the tea ceremony flourished culturally within Japan's pre-modern male-dominated society. Consequently, most tea masters and creators of renowned tea rooms were men, making tea rooms like the Three Famous Seats distinctly masculine spaces.
  Amidst this, there exists a rare tea room called Seiko-ken, built in Kanazawa by Maeda Nariyasu, lord of the Kaga domain, for his mother. This tea room features an earthen floor where the garden seems to flow into the interior. Rather than focusing on the treatment of flat materials within, the design concentrates on the connection to the outside, specifically the openings.
  The circumstance of a male feudal lord creating a tea room for his female mother resonates with the aesthetic of a men's brand designing clothing for women. We therefore conceived this project as a design that reinterprets and transforms Seiko-ken creating a translation that embodies its essence.

  Seiko-ken is a square plan measuring four and a half tatami mats. However, considering it is a tea room transportable anywhere in the world, it must serve both as a logistics module of the maximum overseas-shippable size (2,000mm x 3,000mm) and as the tatami module for the tea room itself. Considering that a single shipping crate must contain the wooden frame, tatami mats, tokonoma alcove, tokonoma pillar, and all other components constituting the tea room, we assumed a three-mat tea room would be the optimal size.
  When transitioning the tea room from four-and-a-half mats to three mats in a contemporary manner, we aimed for a tea room without walls to avoid losing the connection with the external space. As Seiko-ken is not an independent building but a room within a residence, we first sketched an imaginary elevation treating Seiko-ken as a single structure. This helped us understand the relationship between the openings where the design converges and the surrounding space. Furthermore, we sought to harmonise the essence of the traditional space with new values, attempting to inherit the space using only two contemporary materials: Japanese oak and brass.

  The details avoid the strong geometry found in traditional tea rooms, such as dividing lines, circles, or repeating patterns. Instead, we incorporated organic intersections of straight lines and forms with rounded edges, creating a tea room that balances tension and warmth. We were particularly thorough in incorporating contemporary values.
  For instance, the central pillar of Seiko-ken uses bamboo. When substituting this bamboo with brass, in pre-modern times, I believe intricate metalwork would have been employed to express this bamboo. As industrialisation began and the dawn of modernism arrived, there was a tendency to explain phenomena through order, likely organising the bamboo's joints into a series of numerical ratios for production. Subsequently, in the modern era where industrialisation became mass production, extreme abstraction became fundamental, and the bamboo joints are divided into uniform segments. We interpreted contemporary as a value system that “breaks regularity to emphasise only the essence”. Consequently, we created brass sculptures with a joint arrangement that intensifies the spatial expansion effect inherent to bamboo.

  The resulting form was then adapted to the logistics module. For a 2,000mm x 3,000mm flat shape, a height of 300mm proved the most economical size for transport. After designing the wooden crate structure to maximise internal capacity, each component was determined to fit entirely within it without waste.

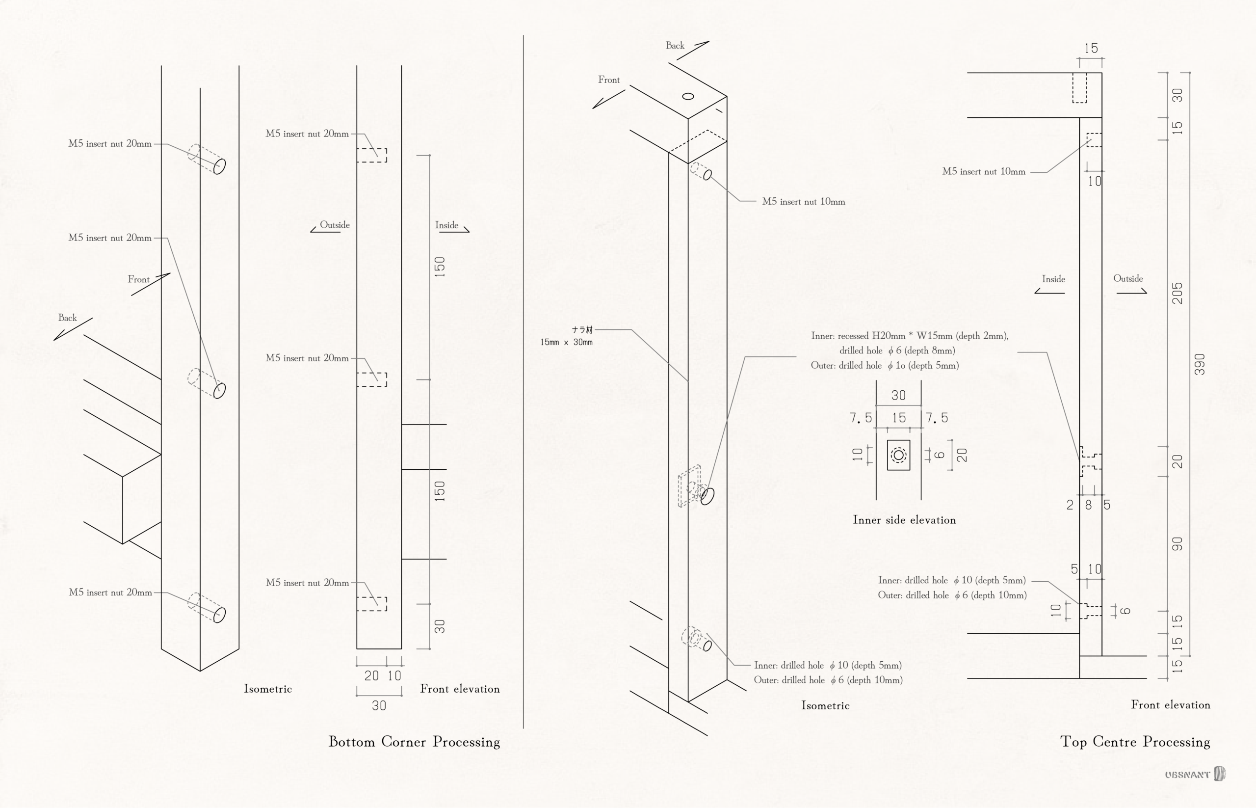
  Consequently, the walls of this tea room comprise six wooden frames. Joining these logistics-module frames with timber framing would make assembly difficult, while bolting them together would appear crude. Therefore, the brass corner posts fitted to the top and bottom of each corner are designed to connect the frames while also considering the effect of the posts pushing the space outwards. Furthermore, to enable anyone to easily install and dismantle it without special tools, all joints are designed like flat-pack furniture. Having carefully considered the optimal method for each connection point, dozens of different types of processing are concealed within the wooden frames.

世界に日本の茶道文化を伝えることを目的とした、 女性のための移動式茶室の設計です。
この茶室は、 2026年1月のパリファッションウィークにて日本のメンズファッションブランドが初の女性向け商品を発表する展示パビリオンとして設計されました。 私たちは、 男性が作る女性のためのお茶室であることと、 世界に茶道文化を伝えるべく輸送に適したデザインであることの、 二つをプロジェクトの主軸に設定しました。

茶室には 「写し」 という概念があります。 これは、 優れた茶室のデザインや美意識を後世に伝えるために、 元となる茶室を 「本歌」 とし、 その意匠を引用することを意味しています。
その 「本歌」 を選定するために歴史的で文化的な茶室を見てみると、 その多くは非常に閉鎖的な空間であることに改めて気付かされます。 理由は主に二つあります。 一つは外界との境を明確に断ち切ることで、 茶人の理想とする小宇宙を閉じ込めるため。 もう一つは茶室内部での身分は平等であり、 武士や役人の政治的な交渉の場として利用されたためです。 例えば、 「三名席」 と呼ばれる国宝茶室では、 外景を取り込まずに、 畳・ 土壁・ 網代天井といった面的な素材の取り合わせの妙が美の核心となっています。
そのような背景のもと、 茶道は近代以前の日本の男性社会において文化的な発展を遂げました。 ですので、 茶人や名席の作り手のほとんどが男性であり、 三名席のような茶室は男性的な空間と言えます。
そんな中、 加賀藩主・ 前田斉泰が母のために金沢に建てた「清香軒」という稀有な茶室があります。 この茶室は、 庭が内部に入り込んでくるような土間を構えており、 内部の面的な素材の扱いよりも、 外とのつながり、 即ち、 開口部にデザインが集約されています。
男性である藩主が女性である母に茶室を作ったという事情は、 メンズブランドが女性のための服を作ることに通ずる美学があると捉え、 このプロジェクトを清香軒の換骨奪胎した 「写し」 としてのデザインすることにしました。

清香軒は四畳半の正方形平面です。 しかし、 世界のどこへでも輸送可能な茶室であることを鑑みると、 海外配送可能な最大サイズである2,000mm x 3,000mmの物流モデュールと茶室の畳モデュールの両方を兼ねる必要があります。 1つの輸送箱に木枠、 畳、 床間、 床柱、 その他全ての茶室を構成する部材が収まることを考慮し、 三畳の茶室が最適な大きさだと仮定しました。
四畳半から三畳へと茶室を現代的に転換していく際に外部空間との繋がりを捨象しないよう、 壁面を持たない茶室を目指しました。 清香軒は独立した建物では無く、 邸宅の一室として作られているため、 まず最初に清香軒を一建築として捉えた想像的な立面図を書き起こし、 デザインが集約された各面の開口部 (貴人口、 躙口、 茶道口、 書院入口、 床窓、 連子窓) と空間の関係性を理解しました。 また、 従来の空間の本質と新たな価値観の共存を図り、 ナラと真鍮という二つの現代的な素材のみで空間を継承することを試みました。

細部は、 従来の名席のような、 切り分け線、 丸、 連続した形などの強い幾何学を使わず、 直線の有機的な交わりと端々に丸みのある形をそのまま取り入れることで、 緊張感と温かみが両立した茶室を演出しています。 特に、 コンテンポラリーの価値観で取り入れていくことを徹底しました。
例えば、 清香軒の床柱には本来竹が使われています。 この竹を真鍮に置き換える際、 近代以前であれば、 精巧な金属細工によってこの竹を表現していたと思います。 工業化が始まりモダニズム黎明期に入ると、 現象を秩序で説明しようとし、 竹の節を数列的な比率で整理して製作したでしょう。 その後、 工業化が量産主義になったモダン時代の今、 極度の抽象化が基本となり、 竹の節は均等割にされてしまいます。 私たちは、 コンテンポラリーを 「本質のみを強調するために規則性を崩す価値観」 だと捉え、 竹がもたらす空間拡張作用を強めた節の配置で真鍮彫刻を制作しました。
  そのようにして決まってきた造形を、 最後に物流モデュールへと適応させました。 2,000mm x 3,000mmの平面形状に対して、 高さ300mmが最も経済的に輸送できるサイズでした。 できるだけ内包立米数が大きくなるような構造で木箱を設計した後、 その中に無駄無く全てが入るように各部材を決定しました。
結果として、 この茶室の壁面は、 6つの木枠から構成されています。 物流モデュールにした木枠同士を木組みで結合させると組み立てが困難になりますが、 一方でボルトで固定すると無骨になってしまいます。 そのため、 四隅の上下に取り付ける真鍮の角柱部品は木枠同士を結合しながら、 柱が空間を外側に押し出す効果も考慮したデザインとしています。 さらに、 特別な道具を使わずに誰でも簡単に設置と取り外しができるように、 全ての結合部は組み立て家具のような仕様となっています。 それぞれの接合箇所に対して最適な方法を吟味したため、 数十種類の加工が木枠に隠されています。

Artefacts / Architecture, Installations

Mobilitearoom T.T-an

茶室・飛行亭「丁丁庵」